Back

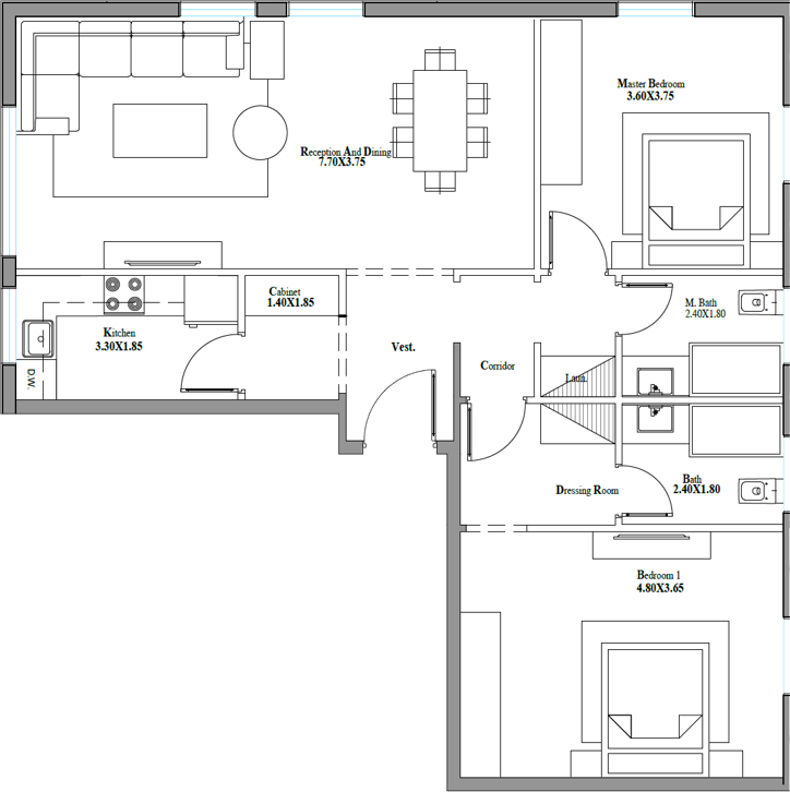
2 Bedrooms 136m2

SKYRAMP

2 Bedrooms (136m2)

Floor Plan
Reception
7.7 x 3.75
Kitchen
3.3 x 1.85
Master Bedroom 1
3.6 x 3.75
Master Bathroom 1
2.4 x 1.8
Master Bedroom 2
4.8 x 3.65
Master Bathroom 2
2.4 x 1.8

Skyramp rises as a beacon of progressive urban living, seamlessly blending residential, commercial, and administrative spaces. Its dynamic architecture, inspired by multiple elevations and orientations, creates a truly distinctive presence.

This website stores cookies on your computer. Cookie Policy

Preloader image